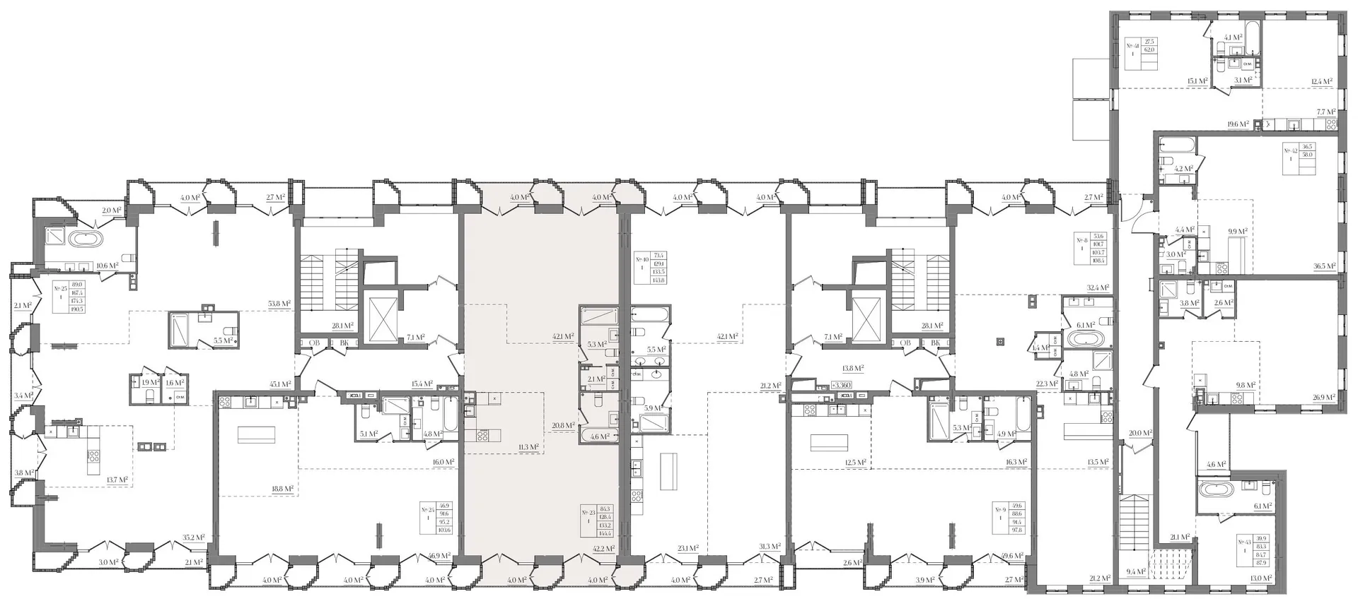
№23
№23
Балкон
Вид на Ковалихинский сквер
паркинг и Хранение
Подземная парковка
Подземный паркинг рассчитан на 51 автомобиль и полностью соответствует уровню дома. Здесь найдётся место как для солидного внедорожника бизнес-класса, так и для динамичного фешенебельного спорткара с низкой посадкой. Для владельцев электромобилей предусмотрена современная зарядная станция — комфорт и технологии всегда под рукой
Сити-боксы
Для жителей дома предусмотрены 43 приватных сити-бокса. Это не просто помещения для хранения — это часть комфортного образа жизни, когда квартира остаётся лёгкой и просторной, а всё лишнее убрано из виду. Здесь удобно разместить спортивный инвентарь, сезонную одежду или аксессуары для путешествий, сохранив в жилом пространстве атмосферу гармонии и порядка.
